杰美裝飾為您提供專屬定制服務
免費參觀工地
預約掃碼報名
胡光軍 監理
【2019年06月08日】金州開工啦,華潤海中國130平開工中,想看工地的業主快來吧,大連地區小區裝修覆蓋面遙遙領先其他裝修公司,快來吧,找裝修,先看杰美裝飾!本案由杰美裝飾設計師張琦操刀設計!


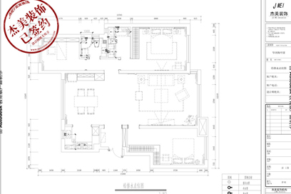
水電已經鋪完,走線距離和拐角處完美走向,家就是需要精細化


瓦工裝修進行中,標準化,標桿式裝修細節,全部都在杰美裝飾,先睹為快!


木工進行啦,石膏線和木制作已經初現模樣,“雕刻”家從一點一劃做起


大白已經完畢,一層一層細節,彰顯大白師傅的功力,大白裝修絕對屬于“精工出細活”,一起來看看!


魅力在于給業主無限遐想,感謝業主的評價,感謝有您,未來可期!


24小時內,我們將發送報價,并和您取得聯系,請您保持電話暢通。